Wohnungsumbau in Moncada von Chiralt Arquitectos

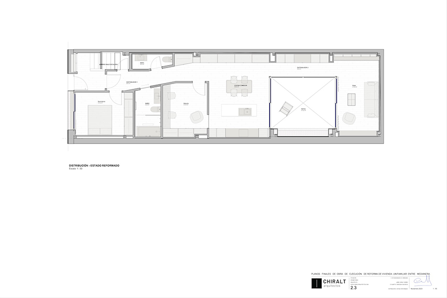
Schwarze Küchenfronten, schlichte Einbaumöbel und dazwischen ein Patio, dessen rötliche Keramik wie ein eingesetztes Relief wirkt: In der Tiefe des schmalen Grundrisses bündeln sich Licht, Vegetation und Material zu einem klar lesbaren Zentrum. Der Innenhof liegt zwischen Küche und Wohnbereich und ist über bodentiefe Fenster mit beiden Gemeinschaftszonen verbunden. So wird er zum funktionalen wie visuellen Ankerpunkt und zum narrativen Prinzip des Entwurfs. In Moncada, einer Stadt in der spanischen Provinz Valencia, widmeten sich Jaume Chiralt und Camilo Cabrera von Chiralt Arquitectos dem Umbau dieser Erdgeschosswohnung. Das Längsvolumen mit der ursprünglichen Abfolge von Schlafzimmer, Sanitärbereich und Arbeitszimmer blieb weitgehend erhalten. Lediglich die Trennwand zur Küche und zum Wohnbereich entfernten die Planer, um einen offenen, zusammenhängenden Raum zu schaffen. Entlang der Flurachse verläuft eine durchgehende Einbauzeile, die je nach Abschnitt Garderobe, Badmöbel, Küchenelement oder TV-Möbel aufnimmt und den Stauraum zu einem präzise integrierten Bauteil bündelt. js
Entwurf: Chiralt Arquitectos, ES-Moncada, www.chiraltarquitectos.com
Bauherr: Privat
Standort: ES-Moncada
Fertigstellung: 2024
Fotos: Alberto Chiralt
Newsletter abonnieren
Diesen Beitrag als PDF herunterladen














