Pädagogische Einrichtungen in Brünn und Olmütz von SOA Architekti

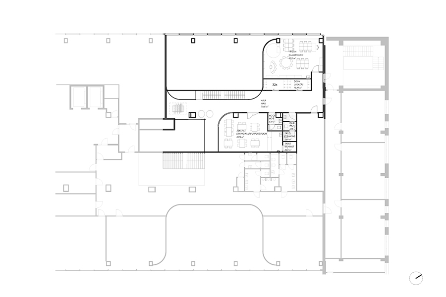
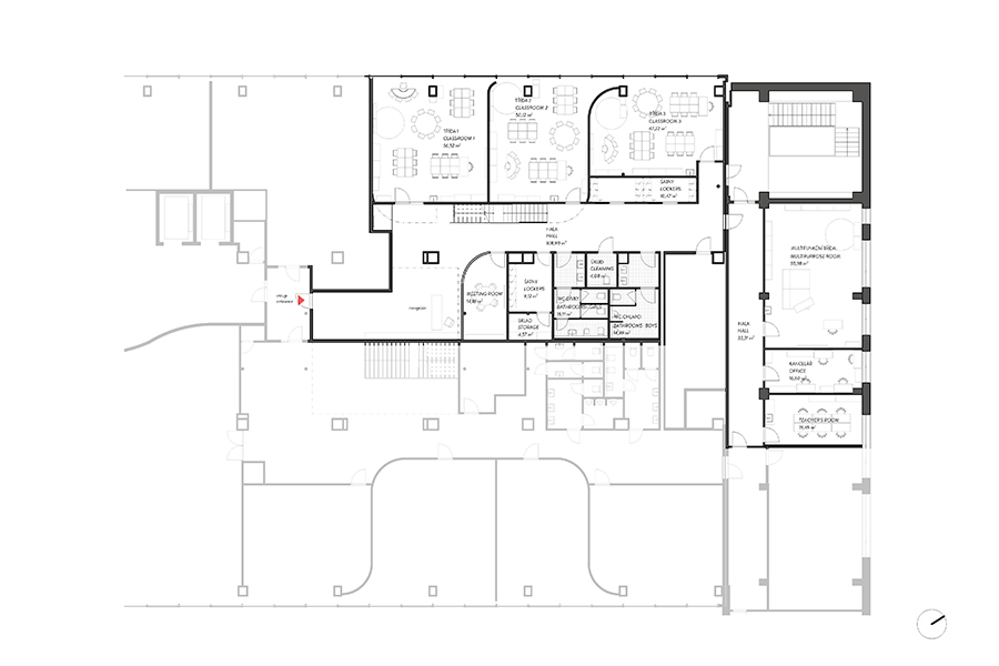
Wie lässt sich ein globales Schulkonzept lokal verankern? SOA Architekti demonstrieren es mit zwei neuen Standorten in Brünn und Olmütz – Bildungsarchitektur, die pädagogische Prinzipien ebenso ernst nimmt wie kulturelle Bezüge. Die kanadische Marke Maple Bear, weltweit mit über 400 Einrichtungen vertreten, setzt in den beiden tschechischen Pilotprojekten auf eine unverwechselbare Farb- und Formensprache. In Brünn wurde ein ehemaliger Industriebau in eine zeitgemäße Grundschule transformiert. Die mehrgeschossige zentrale Halle bildet das Herz der Anlage: Sie vereint Empfang, Bibliothek, Rückzugs- und Spielzonen unter einem durchlässigen, lichtgeführten Dach. Markante Stahlträger in kräftigen Grün- und Rottönen rhythmisieren den Raum und verweisen zugleich auf die kanadische Herkunft des Bildungsmodells. Ergänzt wird das Schema durch gelbe Einbauten, helle Holzoberflächen und transluzente Glasfelder, die auch tief liegende Bereiche wie Mensa oder Besprechungsräume mit Tageslicht versorgen.
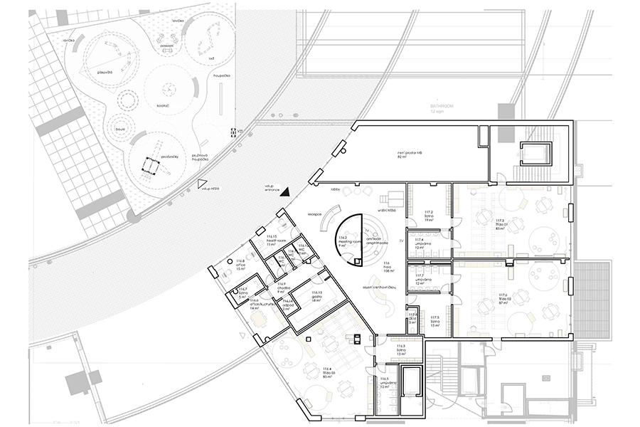
In Olmütz entstand innerhalb eines Gründerzentrums ein Kindergarten, der auf klassische Flurstrukturen verzichtet und stattdessen um eine offene Mittelzone organisiert ist – ein zentraler Spiel-, Lese- und Begegnungsbereich. Ein leuchtend gelbes Raummodul dient als Rückzugs- und Gesprächsraum und prägt die räumliche Identität. Beiden Projekten gemeinsam ist eine starke emotionale und funktionale Codierung: Wandgrafiken verbinden kanadische Landschaftsmotive mit lokalen Sehenswürdigkeiten und schaffen so eine klare gestalterische Brücke zwischen internationalem Bildungsverständnis und regionaler Verortung. js
Entwurf: SOA Architekti, CZ-Prag, www.soaarchitekti.cz
Bauherr: Maple Bear Czechia
Standorte: Lazaretní 925/9, CZ-Brünn; tř. Kosmonautů 1338/1c, CZ-Olmütz
Fotos: Studio Flusser
Newsletter abonnieren
Diesen Beitrag als PDF herunterladen






















