Flagship Store in Toronto von Odami

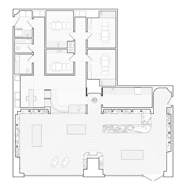
Der erste Flagship Store des kanadischen Kosmetiklabels Living Beauty eröffnete in Toronto – und folgt damit einem vertrauten Gestaltungsnarrativ: Wer im Premiumsegment der Beautybranche bestehen will, inszeniert sich heute im Stil klassischer Apotheken. Zwischen kuratierter Nostalgie und pointierter Selbstinszenierung changiert auch die Gestaltung von Odami (Arancha González Bernardo und Michael Fohring) – zeitgenössisch interpretiert, materialbewusst umgesetzt. Ein geschwungener Mittelblock trennt Beratungs- von Rückzugszonen und dient gleichzeitig als Stauraum sowie Displayfläche. Eine Oberfläche aus poliertem Breccia-Oniciata-Marmor zitiert das klassische Apothekenbild. Statt dunkler Holzeinbauten setzen roséfarbene Schreinerarbeiten – lackiert in „Templeton Pink“ und mit zahllosen kleinen Schubladen versehen – einen überraschenden Akzent. Jede Nische wird zum individuellen Beratungscounter, ausgestattet mit Marmoroberflächen, Sitzgelegenheiten oder Waschbecken. Ein Bodenmuster aus terrakottafarbenen Feinsteinzeugfliesen zieht sich schwungvoll durch den Raum und markiert den Übergang in den privateren Spa-Bereich – ein kraftvolles Statement zwischen Verkauf und Pflegeerlebnis. js
Entwurf: Odami, CA-Toronto, www.odami.ca
Bauherr: Living Beauty
Standort: 672 Dupont St 103, CA-Toronto
Fertigstellung: 2025
Fotos: John Alunan
Newsletter abonnieren
Diesen Beitrag als PDF herunterladen











