Café und Concept Store in Ljubljana von Rob Svensek und Tamir Potokar

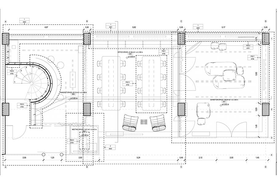
Kaffee neu gedacht: Mit dem .raw Concept-Store in Ljubljana reagieren Rob Svensek und Tamir Potokar auf die Bedürfnisse einer urbanen, kreativen Szene. Der hybride Ort vereint Kaffeebar, Showroom, Büro und Werkstatt und macht kreativen Prozess und Austausch räumlich sichtbar. Von außen fällt der Blick zunächst auf einen kuratierten Showroom, der Designobjekte präsentiert und den Creative Hub im Stadtraum verankert. Innen entfaltet sich eine ehrliche, materialbetonte Atmosphäre: rohe Betondecken und -böden, sichtbare Leitungen und unbearbeitetes Marmorgestein als abstrakte Präsentationsflächen. Ein massiver Marmortresen wird zum Treffpunkt zwischen Arbeits- und Aufenthaltszone. Nur durch Glas und Vorhänge getrennt, lassen die Bereiche Offenheit und kreative Dynamik sichtbar werden. js
Entwurf: Rob Svensek und Tamir Potokar, SI-Ljubljana, www.rawlab.co
Bauherr: .raw
Standort: Slovenska cesta 58, SL-1000 Ljubljana
Fertigstellung: 2025
Fotos: Arin Rapuš
Newsletter abonnieren
Diesen Beitrag als PDF herunterladen
- Screenshot















