Café in Lyon von Bloma

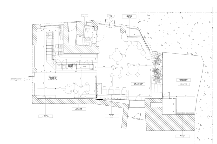
Ein massiver Felsblock bildet den Hintergrund, davor ziehen sich Gewölbebögen aus Naturstein wie eine raue Kulisse durch den Raum. Auf 140 Quadratmetern staffelt sich das Café „Caillou“ in Lyon in unterschiedliche Aufenthaltszonen – vom schnellen Kaffee an der Bar bis zu Sitzgruppen mit Blick entlang der Saône. Der Bodenbelag wechselt zwischen Mosaikfliesen und fugenlosem Zement und hält die Materialpalette bewusst nahe am Bestand. Julian Spagnolo und Jeremy Frenot von Bloma übersetzen den Standort am Fuß des Fourvière-Hügels in ein klar funktionalistisches Raumgerüst, das sie mit weicheren, „aquatischen“ Linien kontrastieren. Das Leitmotiv „entre roche et eau“ (zwischen Fels und Wasser) wird räumlich lesbar: Sichtbarer Naturstein bleibt präsent, während Edelstahl, gezielte Farbakzente und ausgewählte Designklassiker die mineralische Anmutung präzise brechen. Geschwungene Tische und Sitzbänke wirken wie eine lineare Leitfigur im Raum. Als durchgehende Kurve verbinden sie die Sitzbereiche, lösen die Strenge von Fliesenraster und Gewölbe auf und fassen einzelne Tische zu einer zusammenhängenden Zone. js
Entwurf: Julian Spagnolo & Jeremy Frenot / BLOMA, FR-Lyon, www.bloma.fr
Bauherr: Andrieux Terence
Standort: 60 Quai Pierre Scize, FR-Lyon
Fotos: Yvan Moreau
Newsletter abonnieren
Diesen Beitrag als PDF herunterladen
- Screenshot












