Wohnhaus in Abtsdorf am Attersee von Nana Architektur

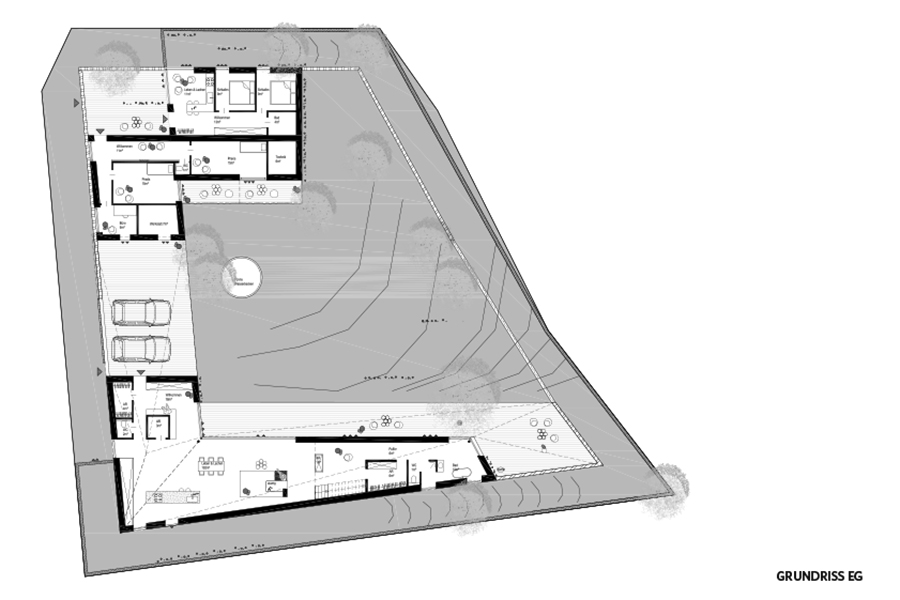
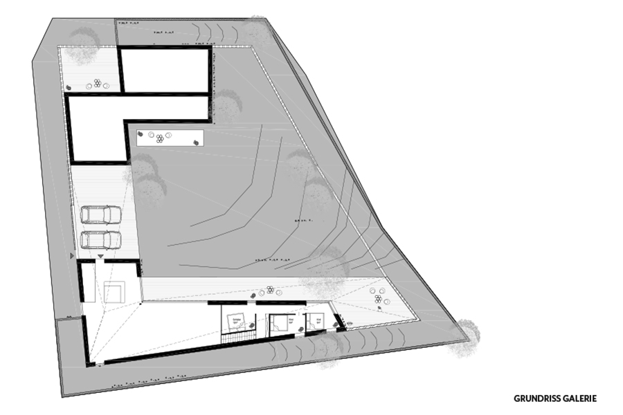
Nana Architektur interpretiert das Prinzip des Vierkanthofs in Abtsdorf am Attersee in einer zeitgenössischen Formensprache. Der Entwurf vereint Wohnhaus, Praxis und Ferienwohnung unter einem gemeinsamen Dach, verbunden über ein Carport, das zugleich Schwelle und Pufferzone bildet. Die äußere Erscheinung bleibt bewusst zurückhaltend: Eine offene Holzfassade umhüllt den Baukörper, während das weit gespannte Satteldach als topografische Geste Bezug auf die alpine Kulisse des Höllengebirges nimmt. Im Inneren prägen klare Sichtachsen, natürliche Holzoberflächen und eine durch die Dachgeometrie gegliederte Raumstruktur das Ambiente. Nicht raumhohe Boxen sind in die Dachlandschaft eingestellt, wodurch ein durchgängiges Raumkontinuum erlebbar bleibt. Herzstück ist der großzügige Wohnbereich mit rahmenloser Schiebeverglasung, die den Übergang zur Terrasse und zum Selbstversorgergarten öffnet. Holz, Betonfertigteile und Dreischichtplatten bestimmen Konstruktion und Innenausbau, ergänzt durch vollständig ausklappbare Verschattungselemente, die homogen in die Fassade integriert sind. Das Ergebnis ist ein klarer, funktionaler Baukörper, der zugleich regional verwurzelt und zeitgenössisch ist. js
Entwurf: Nana Architektur, AT-Wien, www.nana-architektur.at
Bauherr: Privat
Standort: AT-Abtsdorf am Attersee
Fotos: Andreas Jakwerth
Newsletter abonnieren
Diesen Beitrag als PDF herunterladen

















