Bürolandschaft in Hamburg von Ratschko

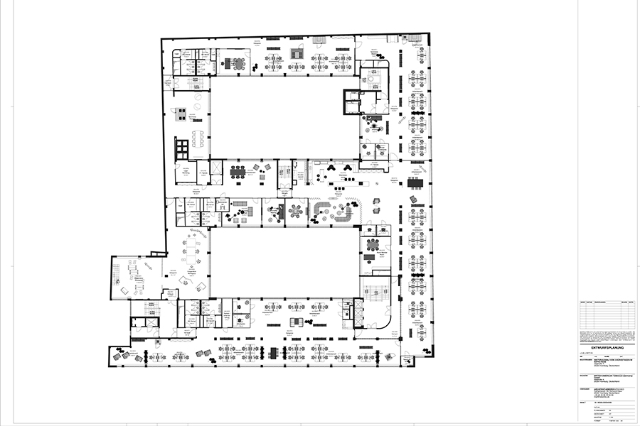
Um für die Mitarbeitenden von BAT Germany ein zukunftsfähiges Arbeitsumfeld zu schaffen, erhielt das Architekturbüro Ratschko den Auftrag, das an der Hamburger Alster gelegene Bestandsgebäude aus den 1930er-Jahren grundlegend zu modernisieren. Die zuvor von Zellenbüros und langen Korridoren geprägte Struktur wich einer offenen, multifunktionalen Bürolandschaft mit 8500 Quadratmetern, die Activity-Based-Working unterstützt. Bereits 2008 hatte das Architekturbüro kleinere Anpassungen vorgenommen, nun jedoch wurde das Konzept radikal weitergeführt – mit klarer Wirkung auf die Unternehmenskultur. „Früher sagten Mitarbeitende: ,Ich gehe in mein Büro‘ und meinten ihr Einzelbüro. Heute bezeichnen sie damit die gesamte Fläche“, erläutert Kai Ratschko. Offene Arbeitszonen mit weiten Blickachsen, flexible Teamräume, Telefonboxen, Konzentrationsarbeitsplätze, Sitzgruppen und gemütliche Alkoven ermöglichen unterschiedliche Arbeitsweisen. Herzstück jedes Geschosses ist eine Teeküche, die Begegnung und Austausch fördert. Orientierung schaffen farbliche und materielle Zonierungen: Kommunikationszonen sind in Blautönen akzentuiert, während Glastrennwände, Regelsysteme und Nischen Rückzug und Sichtschutz ermöglichen. Sichtbar belassene Haustechnik sowie freigelegte Betonstützen und -wände setzen einen rohen Kontrast zu den neuen, maßgefertigten Möbeleinbauten. js

Entwurf: Architekturbüro Ratschko, Hamburg, www.ratschko.de
Bauherr: British American Tobacco (Germany) GmbH
Standort: Alsterufer 4, Hamburg
Fertigstellung: 2024
Fotos: Jakob Börner

Alle News


Newsletter abonnieren
Diesen Beitrag als PDF herunterladen

WordPress Video Lightbox